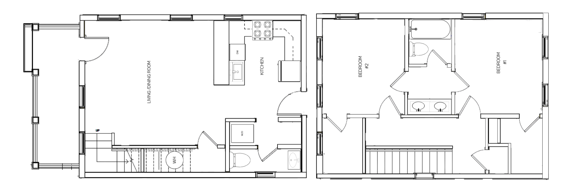
Harrier

2 Bed 1.5 Bath 1,120 Sq Ft

The Harrier is a thoughtfully designed two-bedroom, one-and-a-half-bath home that maximizes space through high ceilings, abundant natural light, and an efficient open layout. The main level flows seamlessly from kitchen to living area, anchored by a welcoming front porch that extends everyday living outdoors. Upstairs, two generously sized bedrooms share a well-appointed full bathroom, offering comfort and balance without wasted space. Set within a community designed around green space, connection, and livability, the Harrier offers an ideal blend of value, style, and access to Chattanooga’s Southside, making it a smart choice for both homeowners and investors.

Previous
Previous

Chickadee (Open Floor Plan) Starting at $279,000 2 Bed | 1.5 Bath | 870 sq ft

Next
Next

Jasper (Bedroom On Main) Starting at $325,000 3 Bed | 2 Bath | 1,060 sq ft | Jasper+ 1,150 sq ft